Ainsley Gommon Architects

Client

Wirral Borough Council with Peel Holdings

Location

Wirral Waters, Birkenhead

Value

£2m approx

Date Completed

Not Applicable

Development Overview

The proposed facility will serve the expanding offshore marine operations industry in Liverpool Bay and the Irish Sea. Operation of off-shore sites demands a rigorous safety regime and the proposal is for a state of the art training facility, where operatives can be trained to deal with simulations of real-life emergency scenarios and life-threatening incidents.

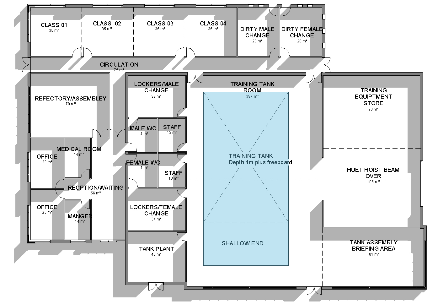
The OSTC will be a robust and functional building with a simple architectural treatment, in keeping with its use. A simple steel portal-framed structure, will create large clear-span spaces with a structure that can carry training equipment, hung from the building frame. The main hall, which contains the training tank, this will provide at least 6.0M of clear headroom over the water to allow the helicopter underwater egress trainer to be deployed.

Classrooms, offices and welfare facilities wrap around two sides of the tank area. The decks created over these single-storey spaces, form viewing areas, and bulky equipment can be stored. Large windows will overlook the external fire-training space and boat-launch areas. The classrooms can be subdivided for small seminar groups or opened up for lager training events. Further changing rooms will serve “dirty” training sessions that are carried out in the fire zone.

The fire zone will be formed as a simple steel-framed helipad with shipping containers stacked around its perimeter. These will simulate the utilitarian engineering of a typical oil or gas platform. The waterfront of the site will be partly lined with floating pontoons to which small boats can be moored. Larger boats may be deployed with davits or a small crane.